Refine Search
Location
Radius
Min Beds
Min Price
Min Price
Max Price
Max Price
Location
Radius
Min Beds
Min Price
Min Price
Max Price
Max Price
 

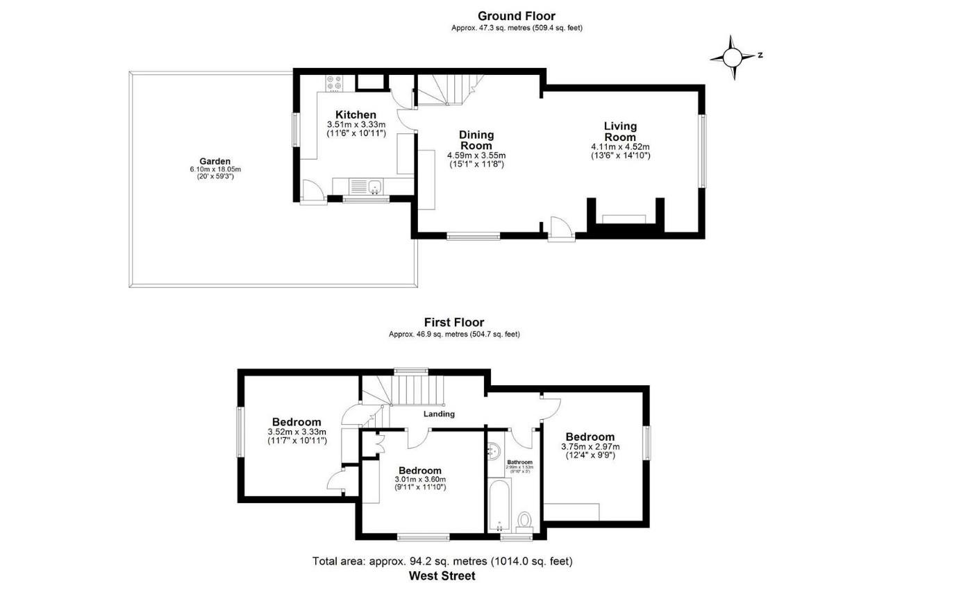
West Street, Hertford

Let Agreed

£1,895 PCM

3
1
Gallery (11)

Summary

Taylor Phelps are pleased to offer this three bedroom period home is situated in on West Street in Hertford. This fantastic property has been stylishly updated throughout and is positioned close to Hertford town centre which offers a number of amenities, conveniences and two mainline train stations serving central London

Full Description

Viewing & Disclaimer

Viewing
Please contact us on 01920 459 000 if you wish to arrange a viewing appointment for this property, or require further information.

Disclaimer
Taylor Phelps endeavour to maintain accurate depictions of properties in Virtual Tours, Floor Plans and descriptions, however, these are intended only as a guide and purchasers must satisfy themselves by personal inspection.

IE8 Alert! Cookie Alert!

To get the best possible experience using our website we recommend you upgrade to a modern web browser. More info

Location
Radius
Min Beds
Min Price
Min Price
Max Price
Max Price
Location
Radius
Min Beds
Min Price
Min Price
Max Price
Max Price