Refine Search
Location
Radius
Min Beds
Min Price
Min Price
Max Price
Max Price
Location
Radius
Min Beds
Min Price
Min Price
Max Price
Max Price
 

Yearling Close, Great Amwell - Stunning Kitchen

Available

£865,000

5
3
Gallery (25)

Summary

Taylor Phelps are delighted to offer this significantly improved and redesigned detached residence positioned within the ever popular and sought after Parish of Great Amwell. This larger style home boasts spacious accommodation to include five bedrooms and three bathrooms, further more there is a magnificent family kitchen, modern open plan living space, ample driveway and falls into the popular catchment areas for highly regarded local schools to include Presdales and furthermore both Ware and St Margarets stations are equidistant within a mile and offer good links to both Hertford East and London Liverpool Street!

Full Description

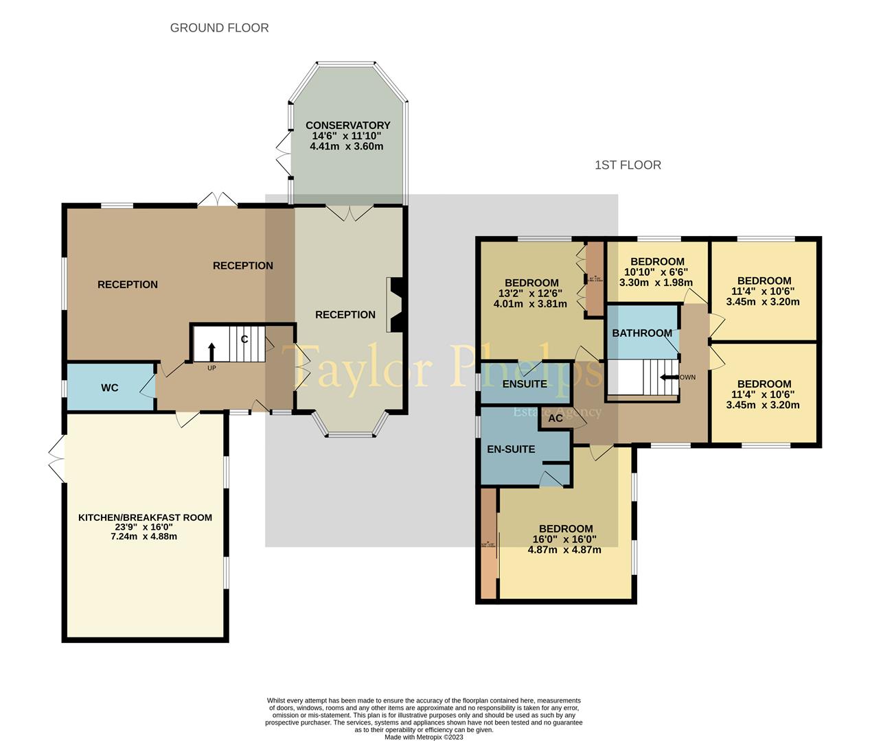
Entrance

Open Plan Reception (6.55m x 10.67m (21'6 x 35))

Family Kitchen (7.24m x 4.88m (23'9 x 16))

Conservatory (4.42m x 3.61m (14'6 x 11'10))

Downstairs w/c

Galleried Landing

Bedroom One (4.88m x 4.88m (16 x 16))

Ensuite

Bedroom Two (4.01m x 3.81m (13'2 x 12'6))

Ensuite

Bedroom Three (3.45m x 3.20m (11'4 x 10'6))

Bedroom Four (3.45m x 3.20m (11'4 x 10'6))

Bedroom Five (3.30m x 1.98m (10'10 x 6'6))

Family Bathroom

Exterior

Viewing & Disclaimer

Viewing
Please contact us on 01920 459 000 if you wish to arrange a viewing appointment for this property, or require further information.

Energy Performance Certificate
Click here to view the Energy Efficiency Rating and Environmental Impact Rating for this property.

Disclaimer
Taylor Phelps endeavour to maintain accurate depictions of properties in Virtual Tours, Floor Plans and descriptions, however, these are intended only as a guide and purchasers must satisfy themselves by personal inspection.

IE8 Alert! Cookie Alert!

To get the best possible experience using our website we recommend you upgrade to a modern web browser. More info

Location
Radius
Min Beds
Min Price
Min Price
Max Price
Max Price
Location
Radius
Min Beds
Min Price
Min Price
Max Price
Max Price